2026-04-09 00:28来源:本站
Meriton在Rhodes半岛的最后一期滨水楼盘Reflections现已进入了最后的收尾阶段,现保留最后4套精选的大户型两房和三房户型,仅78.9万澳元起!
Reflections现已全面竣工,可即刻入住。楼盘享有令人称羡的水滨地段,将Rhodes半岛闻名遐迩的绝美水景一览无余。



滑动查看Reflections水景实拍
开发商Meriton还提供低息的定期购房贷款以及租赁保障,Meriton强大的租赁团队不仅保障物业有租客,更会帮助房东获得最佳的租金回报!扫描下方二维码了解详情!

Reflections的所有公寓配套SMEG品牌厨房电器五件套,包括烤箱、煤气灶、抽油烟机、微波炉以及洗碗机。此外,Reflections还带有仅供居民们享受的恒温泳池和健身房等高级设施。






滑动查看Reflections实拍
从Reflections出发,10分钟即可步行到Rhodes火车站,搭乘火车不到20分钟即可抵达悉尼CBD;15分钟漫步至繁华的Rhodes Waterside商场;搭乘Rivercat快速轮渡则能沿着风景如画的Parramatta河前往悉尼城区;驾车则只需20分钟就能前往Parramatta的众多名校和高等学府。开车的话不用10分钟,就能抵达毗邻的悉尼奥林匹克公园,这里拥有清丽怡人的户外休闲空间、敞阔的大型体育场、以及世界一流的娱乐场馆。

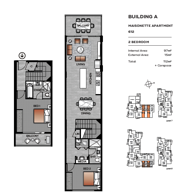
户型推荐 - 97平米超大复式两房,带水景和中央花园景观。东西通透,有满分的自然对流通风效果。主卧和配套洗手间独享二楼,且配有大面积私家阳台。

户型推荐 - 97平米超大复式两房,带水景和中央花园景观。东西通透,有满分的自然对流通风效果。主卧和配套洗手间独享二楼,且配有私家阳台。

户型推荐 - 带车位宽阔三房,拥有卧室分居在起居餐厨区域两侧的理想布局,主卧与客卧隔开,保证充分的隐私。带有嵌入式媒体室。

户型推荐 - 宽阔三房带车位,带半开放和开放式阳台以及嵌入式媒体间。

户型推荐 - 宽阔东朝向阳光两房带车位,带有27平米超大私家露台。
滑动查看Reflections精选户型
扫码添加Meriton专业地产销售

扫码关注Meriton官方微信号

文中价格以2021年6月3日为准